




Um belíssimo empreendimento com a qualidade Cliff Construtora e Incorporadora. Localizado na cidade de Guaratuba, no Litoral do Paraná, à 350m das duas melhores praias da cidade e próximo a diversos comércios. O empreendimento é composto por 03 unidades residenciais com arquitetura moderna.
Rua São José dos Pinhais, 299 - Brejatuba - Guaratuba/PR.
O EMPREENDIMENTO
DESCRIÇÃO DAS UNIDADES
118,60 m²
de Área Privativa;
03 Quartos
(sendo 01 Suíte com Closet);
02 Vagas de Garagem
(sendo 01 Coberta);












Sala de Estar/Jantar integrada com Cozinha e Churrasqueira;
Circulação dos quartos com espaço para rouparia ou home-office;
Lavanderia Fechada.
DIFERENCIAIS
Esquadrias com perfil em alumínio e persiana integrada nos quartos;
Portas com pintura laqueada e com borracha amortecedora;
Pisos e revestimentos em Porcelanato Eliane Tipo A;












Forro rebaixado em gesso;
Infra de ar-condicionado na sala e nas suítes;
Infra de aquecimento à gás na cozinha e banheiros;


Churrasqueira a carvão;


Localizado à 350m da praia.
IMAGENS RENDERIZADAS








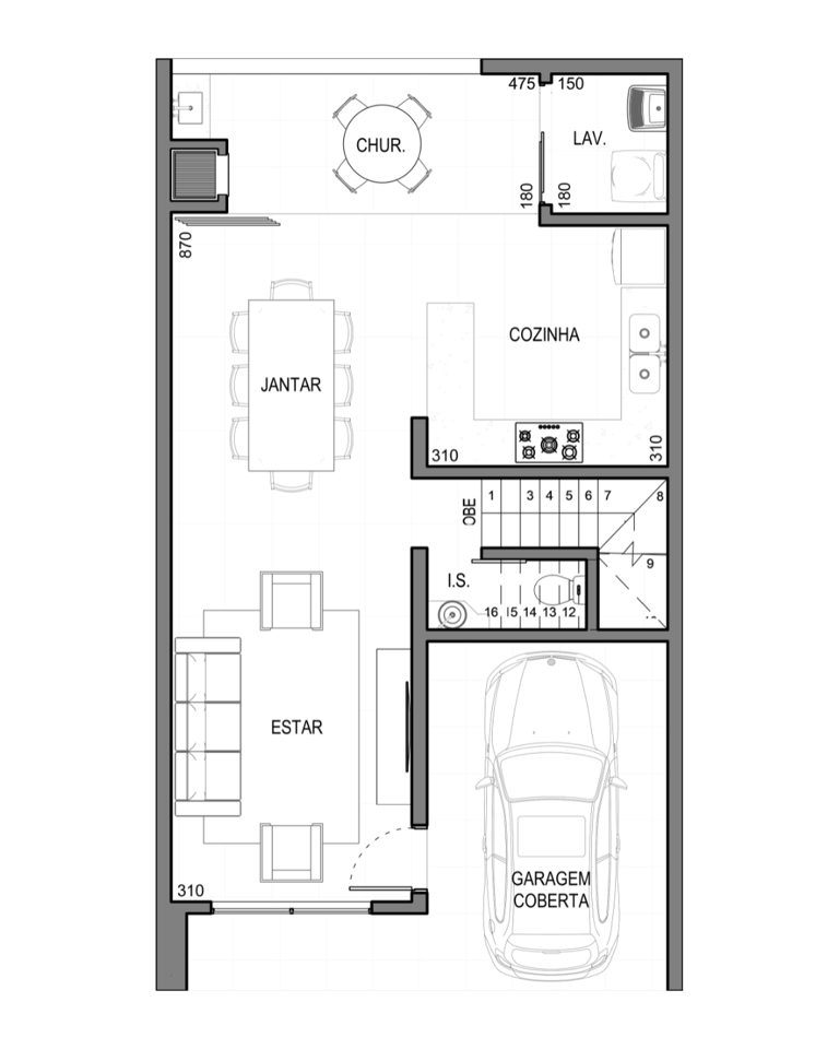
PLANTAS BAIXAS




LOCALIZAÇÃO DO EMPREENDIMENTO
GOSTARIA DE SABER MAIS INFORMAÇÕES SOBRE O RESIDENCIAL RSJP-299?


